Ricerca rapida
-
-
CERCA

Conegliano
CONEGLIANO : NEGOZIO MQ. 100 A REDDITO

Negozio

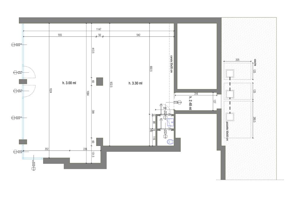
Conegliano : negozio in zona centrale di grande passaggio attualmente a reddito. L'immobile misura 100 mq. commerciali ed è dotato di due AMPIE VETRINE FRONTE STRADA con serrande motorizzate e di bagno con antibagno. Maggiori info in agenzia. Rif. FZ198.
Si precisa che gli indirizzi presenti negli annunci non sono identificativi dell'ubicazione esatta dell'immobile, ma danno un riferimento generico della zona al fine di tutelare la riservatezza e la privacy dei proprietari.

Caratteristiche

Codice
FZ198Q
Prezzo
150.000,00 EUR
Spese condominiali
1.200,00 EUR
Mq
100
Classe
G (346,5 [kWh/m²a])
Locali
1
Bagni
1
Stato Immobile
Ristrutturato
Grado
Medio
Posizione
Centro
Orientamento
Sud
Totale Piani
Quattro
Lati Liberi
1
Arredi
Non Arredato
Riscaldamento
Conta Calorie
Tipo Impianto
Radiatori
Acqua Calda
Autonoma
Infissi
Metallo
Serramenti
Buono
Persiana
Oscurante Metallo
Pavimento
Laminato
Numero Vetrine
Due
Destinazione
Commerciale

VIDEO

MAPPA

Piazzale San Martino 999, Conegliano (TV)
Richiedi informazioni
Codice:
Nominativo: *
Telefono: *
Email: *
Descrivici l'immobile che stai vendendo. Ti contatteremo a breve per concordare insieme la migliore strategia per venderlo al meglio: *
Autorizzo il trattamento dei miei dati personali in base Regolamento UE n. 679/2016 - Privacy Policy
Invia
Cookie preference