Ricerca rapida
-
-
CERCA

Codognè (Cimavilla)
CODOGNE' CIMETTA: RUSTICO 4 CAMERE ABITABILE CON AMPIO SCOPERTO

Rustico/Casale

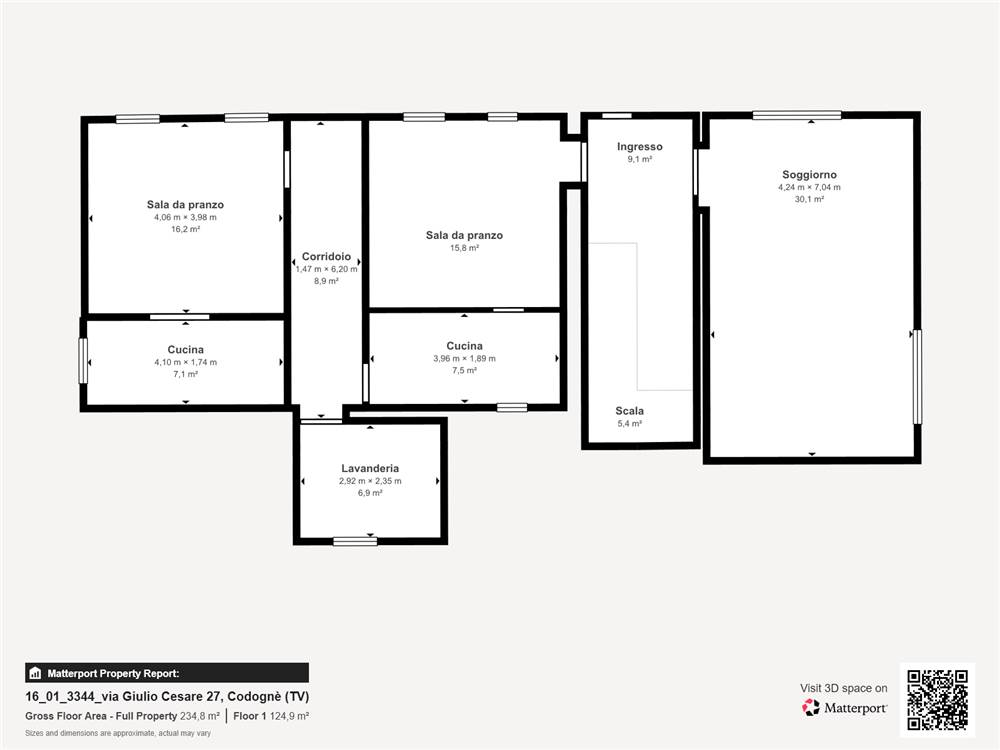
Codognè: in zona Cimetta proponiamo in vendita in esclusiva rustico singolo di mq. 230 catastali, in parte abitabile e in parte da ristrutturare, così composto: al piano terra ingresso, soggiorno, cucina/pranzo, cucinino, bagno, ripostiglio ed ulteriore stanza; al piano primo 4 camere e bagno. completano la proprietà un magazzino ed uno scoperto di mq. 1.000 circa.
L'immobile si presenta in discrete condizioni generali, avendo beneficiato del rifacimento del tetto nel 1997 e si presenta con una parte abitabile con stube in zona giorno e riscaldamento a termosifoni con caldaia a metano, mentre l'altra parte presenta finiture dell'epoca di costruzione e si presta ad una ristrutturazione. La zona è tranquilla ma vicina a tutti i servizi.

Per maggiori dettagli contattare l'Agenzia. Rif. FZ195

Principali caratteristiche :

• Ottima metratura.
• Scoperto privato di mq. 1.000 circa.
• Per chi cerca una casa singola.
• Attualmente con parte abitabile e parte da ristrutturare.
• Contesto abitativo tranquillo ma vicino ai servizi.

Cosa aspetti...? Chiamaci o whatsapp 348.2663474. Rif. FZ195

Vuoi vendere il tuo immobile ?
Affidati a un gruppo di professionisti di zona
GRUPPO AGENZIE IMMOBILIARI DI MARCA
• Querini Immobiliare - Conegliano
• Immobiliare San Rocco - Conegliano
• Agenzia Imm.re Monticella - Conegliano
• Agenzia Imm.re Pompeo Manuel - Susegana
• Immobiliare La Decisa - Vittorio Veneto
• Abitare & Moret - Vittorio Veneto
• Castagner Studio Immobiliare - Vittorio Veneto
• Immobiliare Mara Giacomini - Vittorio Veneto
• Agenzia Imm.re La Maison - Cappella Maggiore
• Agenzia Imm.re Zanette - Colle Umberto
• Agenzia Imm.re La Pieve - Pieve di Soligo
• Agenzia Imm.re Il Maso - Follina

Un solo incarico, 12 professionisti al tuo fianco

Si precisa che gli indirizzi presenti negli annunci non sono identificativi dell'ubicazione esatta dell'immobile, ma danno un riferimento generico della zona al fine di tutelare la riservatezza e la privacy dei proprietari.

Per maggiori dettagli contattare l'agenzia. Rif. FZ195
Linea info whatsapp : 348.2663474

Caratteristiche

Codice
FZ195
Prezzo
175.000,00 EUR
Mq
250
Classe
VA
Locali
9
Camere
4
Bagni
2
Mq Giardino
1000
Stato Immobile
Abitabile
Lati Liberi
4
Giardino
Privato
Riscaldamento
Autonomo
Tipo Riscaldam.
Caldaia
Tipo Impianto
Radiatori
Fonte Energetica
Metano
Accessori
Doppi Vetri

MAPPA

Via Fontanazze 999, Codognè (TV)
Richiedi informazioni
Codice:
Nominativo: *
Telefono: *
Email: *
Descrivici l'immobile che stai vendendo. Ti contatteremo a breve per concordare insieme la migliore strategia per venderlo al meglio: *
Autorizzo il trattamento dei miei dati personali in base Regolamento UE n. 679/2016 - Privacy Policy
Invia
Cookie preference