Ricerca rapida
-
-
CERCA

Vazzola (Visnà)
VILLA ANNI 70 + CAPANNONE/LABORATORIO SU LOTTO DI MQ. 2.000

Villa

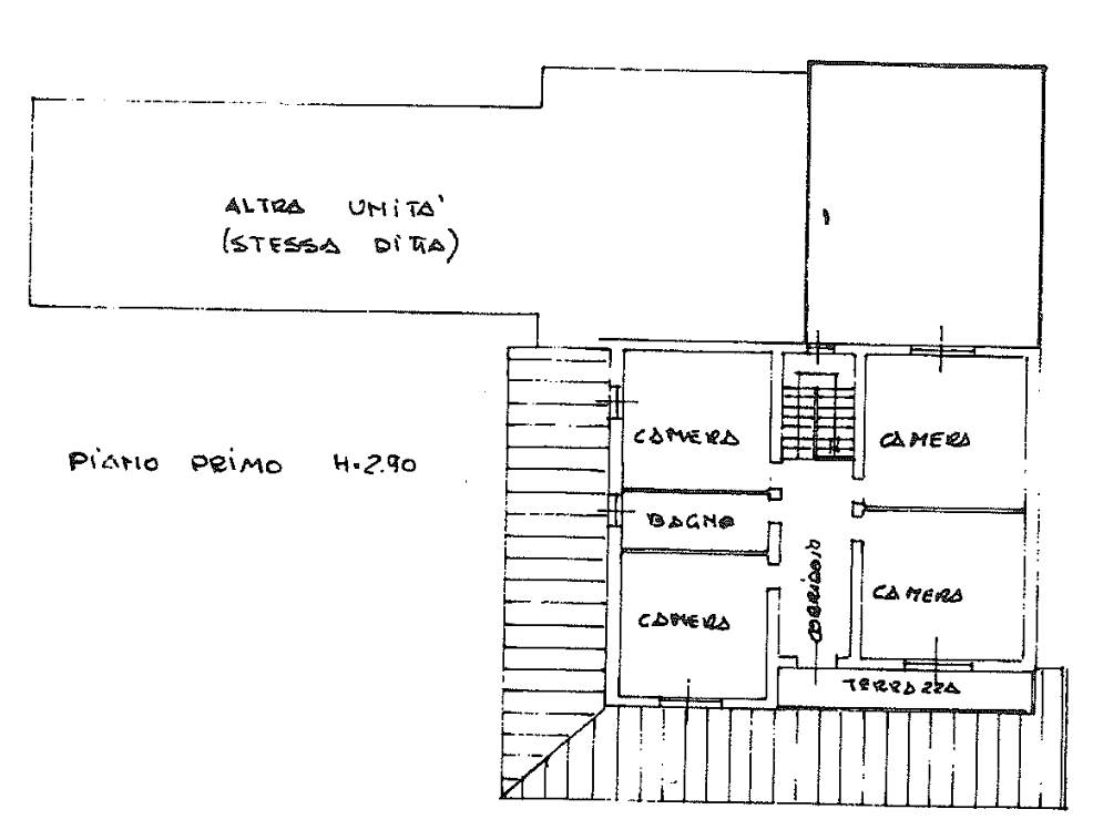
Proponiamo in vendita a Vazzola in zona Visnà un compendio immobiliare composto da villa anni '70 di mq. 219 catastali composta a piano terra da cucina, sala da pranzo, ampio soggiorno, bagno, lavanderia, centrale termica, grande taverna con caminetto e cantina; al piano superiore 4 ampie camere, bagno e terrazzo; esternamente ampio porticato. Adiacente alla villa e collegato internamente troviamo un capannone/laboratorio artigianale di mq. 380 circa. Area esterna scoperta di mq. 2.000 circa. L'intero compendio immobiliare si trova in buono stato, con diversi lavori di manutenzione eseguiti negli anni.
Maggiori dettagli in agenzia. Rif. FZ188

Principali caratteristiche :

• Per chi desidera un immobile indipendente con adiacente laboratorio artigianale.
• 4 camere 2 bagni e lavanderia, grande taverna.
• Spazi ideali per una famiglia.
• Grande scoperto di proprietà ad uso orto, giardino e parcheggio.

Cosa aspetti...? Chiamaci/whatsapp 348.2663474. Rif. FZ188

Vuoi vendere il tuo immobile ?
Affidati a un gruppo di professionisti di zona
GRUPPO AGENZIE IMMOBILIARI DI MARCA
• Querini Immobiliare - Conegliano
• Immobiliare San Rocco - Conegliano
• Agenzia Imm.re Monticella - Conegliano
• Agenzia Imm.re Pompeo Manuel - Susegana
• Immobiliare La Decisa - Vittorio Veneto
• Abitare & Moret - Vittorio Veneto
• Castagner Studio Immobiliare - Vittorio Veneto
• Immobiliare Mara Giacomini - Vittorio Veneto
• Agenzia Imm.re La Maison - Cappella Maggiore
• Agenzia Imm.re Zanette - Colle Umberto
• Agenzia Imm.re La Pieve - Pieve di Soligo
• Agenzia Imm.re Il Maso - Follina

Un solo incarico, 12 professionisti al tuo fianco

Si precisa che gli indirizzi presenti negli annunci non sono identificativi dell'ubicazione esatta dell'immobile, ma danno un riferimento generico della zona al fine di tutelare la riservatezza e la privacy dei proprietari.

Per maggiori dettagli contattare l'agenzia. Rif. FZ188
Linea info whatsapp : 348.2663474

Caratteristiche

Codice
FZ188
Prezzo
850.000,00 EUR
Mq
600
Classe
F
Locali
12,5
Camere
4
Bagni
2
Stato Immobile
Abitabile

VIDEO

MAPPA

Via Isonzo 11, Vazzola (TV)
Richiedi informazioni
Codice:
Nominativo: *
Telefono: *
Email: *
Descrivici l'immobile che stai vendendo. Ti contatteremo a breve per concordare insieme la migliore strategia per venderlo al meglio: *
Autorizzo il trattamento dei miei dati personali in base Regolamento UE n. 679/2016 - Privacy Policy
Invia
Cookie preference